Современный бизнес и руководители фермерских хозяйств заинтересованы в получении хорошей прибыли. Ведь собранный урожай необходимо качественно очистить, переработать и сохранить. Для достижения этой цели предприниматели должны иметь качественное современное оборудование, способное очистить сильно засоренное, влажное или сухое зерно выращенных культур.
От того, насколько качественно обработано зерно, зависит прибыльность и репутация сельхоз- товаропроизводителя. В связи с этим рентабельное ведение сельского хозяйства предполагает обязательное наличие в фермерском хозяйстве зерноочистительного комплекса.
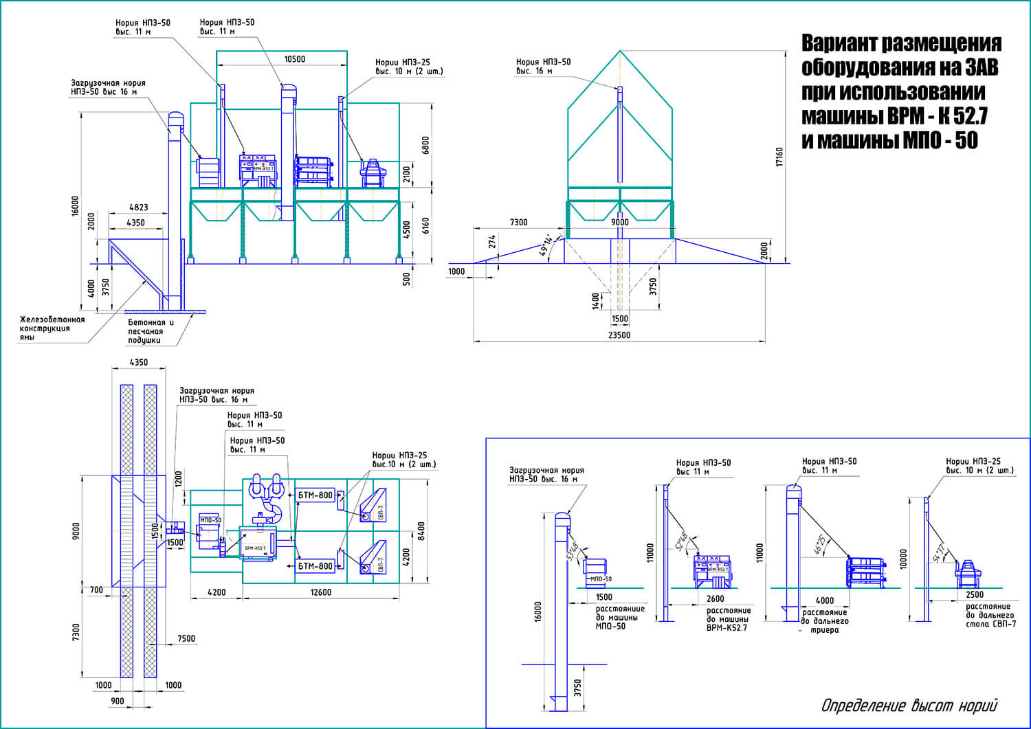
Комплекс ЗАВ используется для обработки собранного урожая зерновых, масличных, бобовых культур. В этот комплекс входит целый набор машин и оборудования, которые связаны в одну технологическую линию, составляющую два отделения.
Первое отделение предназначено для предварительной очистки зерновой массы от примесей как крупных, так и мелких. Здесь же зерно временно хранится в вентилируемых бункерах. Это отделение содержит автомобилеразгрузчик, завальную яму, промежуточный транспортер, две нории, отделение для хранения зерновой массы. Сюда же входит машина предварительной очистки.
Второе отделение предназначено для окончательной очистки зерна, распределения фракций по разным бункерам, а также для дальнейшей их выгрузки в автотранспорт. В это отделение входит воздухорешетная очистительная машина, триерные блоки, зернопроводы и аспирационная система.

